plan maison lumineuse

Vu sur construiresamaison.com
26 janv. 2016 - une maison lumineuse et spacieuse; plan maison vide - une maison lumineuse et spacieuse; plan maison meublé - une maison lumineuse et spacieuse. gaïa organic égraine les ouvertures et permet aux sources de lumière naturelle de fleurir aussi bien au coeur des murs qu'à travers le toit. elle crée un ...

Vu sur construiresamaison.com
23 mai 2014 - selon une enquête ipsos commandée par la société velux®, neuf français sur dix considèrent qu'une bonne luminosité dans un logement a des effets positifs sur le moral : nous avons besoin du soleil pour bien vivre. d'où l'importance d'une orientation étudiée pour la maison, et d'un emplacement ...

Vu sur s-media-cache-ak0.pinimg.com
gaïa organic égraine les ouvertures et permet aux sources de lumière naturelle de fleurir aussi bien au coeur des murs qu'à travers le toit. elle crée un lieu d.

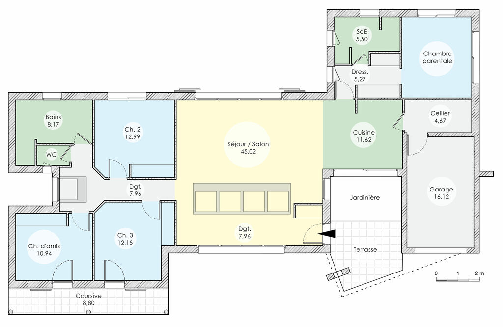
Vu sur construiresamaison.com
26 janv. 2016 - une maison lumineuse et spacieuse · plan maison vide - une maison lumineuse et spacieuse · plan maison meublé - une maison lumineuse ... plan maison lumineuse. 7 avr. 2014 - maison lumineuse et épurée - 1.700 ? - 161 m² - cette maison contemporaine fait la part belle à l'espace et à la lumière.

Vu sur ws.pap.fr
la porte d'entrée vitrée laisse glisser la lumière sur de belles dalles rectangulaires et émaillées. prestations haut de gamme avec un chauffage au sol dans toutes les pièces, des panneaux solaires pour chauffer l'eau, des tunnels de lumières dans le couloir (récupèrent la lumière extérieure et la renvoie dans les pièces ...

Vu sur construiresamaison.com
chÔra, maison moderne. villa chÔra ...entrez dans une villa, belle, lumineuse, où la nature est sublimée, où l'air est sain, pur et léger, une villa qui prend soin de vous… sa qualité acoustique vous plonge instantanément dans une douce quiétude. laissez-vous surprendre par les cloisons musicales, leur son spatial ...

Vu sur construiresamaison.com
de nouveaux modèles de maisons pour un nouveau mode de vie aujourd'hui, les familles passent davantage ...

Vu sur construiresamaison.com
20 juin 2014 - pour obtenir une maison lumineuse, il existe quelques petits travaux simples à réaliser. panorama des solutions ingénieuses et faciles à mettre en oeuvre.





