plan maison avec patio central
120 m² - une maison de plain-pied avec double garage et trois chambres, qui s'intègre parfaitement dans le paysage provençal. une réalisation maison familiale ... plan de maison ordonnancée sur un patio central définissant clairement les espaces dit de jour et les espaces dit de nuit. projet aisément adaptable en ...

Vu sur i.pinimg.com
![]()
Vu sur architecte-paca.com
découvrez le tableau "maison patio" de codi cot sur pinterest. | voir plus d'idées sur le thème le plan, patio moderne et architecture.
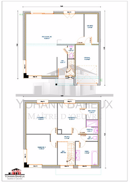
120 m² - une maison de plain-pied avec double garage et trois chambres, qui s'intègre parfaitement dans le paysage provençal. une réalisation maison familiale ... plan de maison ordonnancée sur un patio central définissant clairement les espaces dit de jour et les espaces dit de nuit. projet aisément adaptable en ...

Vu sur i.pinimg.com
modèle contemporain de plain-pied avec le petit détail confort : un patio ! une véritable maison d'architecte avec son double garage, 4 chambres dont 1 suite parentale avec salle de bain privative et dressing à l'écart des chambres des enfants. un salon/séjour avec 2 portes-fenêtres et un accès directe au patio. idéale pour ...
très belle maison contemporaine avec un plan articulé autour d'un patio central et de larges ouvertures vers l'extérieur, modernité du crépis bois mineral.
![]()
Vu sur architecte-paca.com

Vu sur p7.storage.canalblog.com
maison de plain pied, contemporaine avec patio central, piscine.

Vu sur i.pinimg.com
plan de maison ordonnancée sur un patio central définissant clairement les espaces dit de jour et les espaces dit de nuit. projet aisément adaptable en maison ossature bois. ,surface habitable 129 m2 - plan de maison avec patio architecte perspective 130.

Vu sur media1.forumconstruire.com
6 avr. 2014 - a la recherche d'inspiration pour construire votre future maison ? côté maison vous présente 4 maisons de rêve modernes, aussi belles que réelles. elles sont à copier sans attendre !
Vu sur medias.ooreka.fr

Vu sur s-media-cache-ak0.pinimg.com

Vu sur evtod.com





