plan maison 91m2
découvrez en détail le plan n°118 de cette maison de 91m2 avec 3 chambres et téléchargez ce plan gratuitement en ligne sur le site constructeurdemaison.net.
découvrez en détail le plan n°155 de cette maison de 91m2 avec 3 chambres et téléchargez ce plan gratuitement en ligne sur le site constructeurdemaison.net.
découvrez en détail le plan n°118 de cette maison de 91m2 avec 3 chambres et téléchargez ce plan gratuitement en ligne sur le site constructeurdemaison.net.

Vu sur eulogia.fr

Vu sur eulogia.fr

Vu sur i.pinimg.com
découvrez en détail le plan n°196 de cette maison de 91m2 avec 3 chambres et téléchargez ce plan gratuitement en ligne sur le site constructeurdemaison.net.
mda t6 est une maison de 91 m2 environ, sur un étage. elle se veut très design avec un bardage bois et un enduit qui la recouvre partiellement. elle possède un garage détaché, ce qui fait toute sa différence. son intérieur est quant à lui spacieux. mda t6 possède à l'étage 3 chambres, une salle de bain avec deux ...
maison contemporaine t4 - 80 à 91m2 - c80/91. maison ossature bois moderne c80-91. c80-c91 plan-c80-a4 plan-c91-a4. présentation; en détails; demander un devis personnalisé. maison équipée de : 3 chambre; 1 salle de bain; cuisine avec cellier; grand salon - séjour de 35,36m2 ou 39,83m2. détail technique ...

Vu sur construiresamaison.com

Vu sur archifacile.fr

Vu sur maison-pas-cher.fr
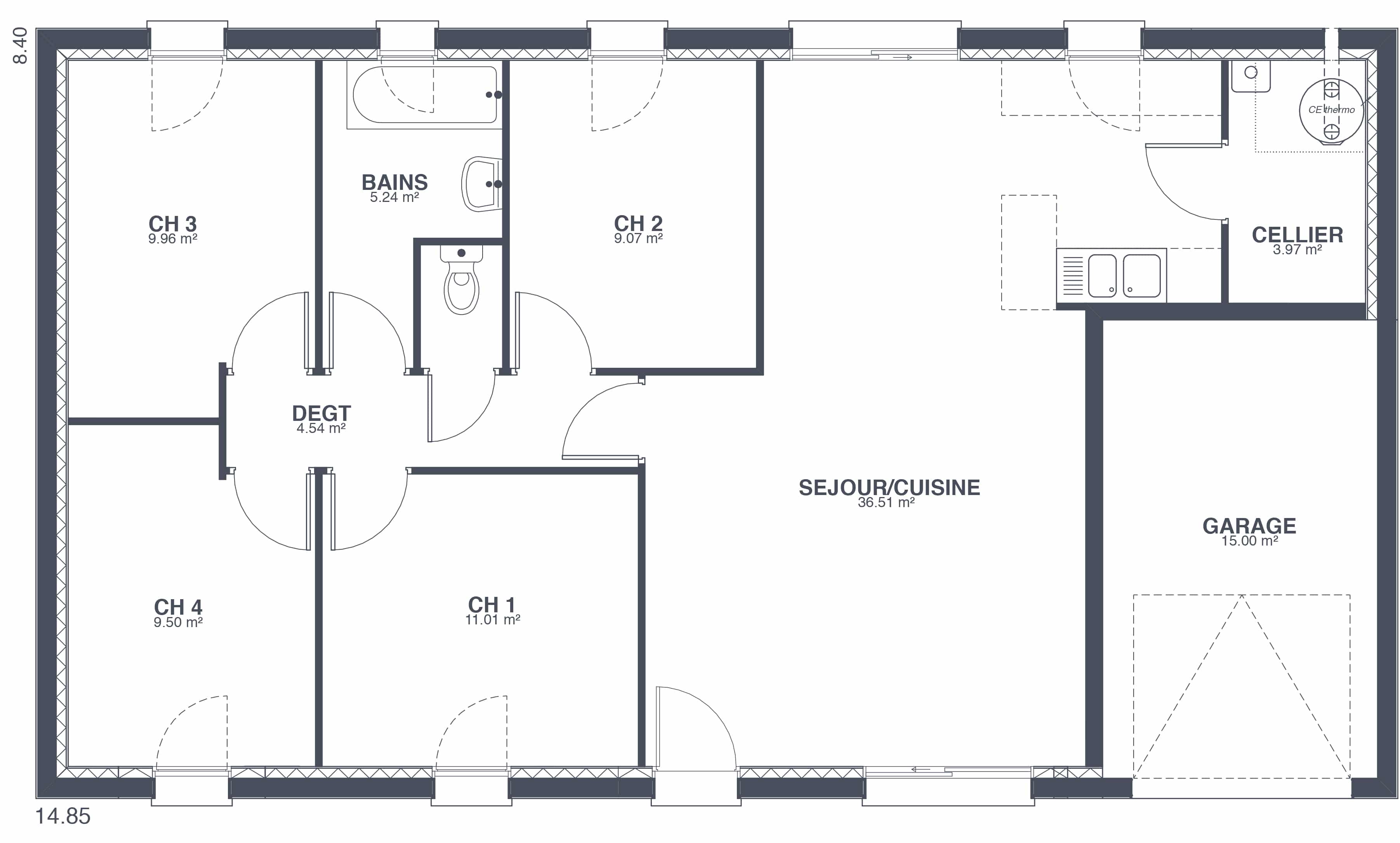
maison focus plein pied- 4 chambres 91m2 + garage de 15m2- rt 2012. consultez notre plan maison.
description. maison low cost familiale. nom du modèle : focus 91. superficie : 91 m2 + garage de 15m2; caractéristiques : plan en plain pied. 3 ou 4 chambres; garage intégré. mode de chauffage : solution gaz. pac (pompe à chaleur disponible en option à 1000 euros). isolation et performance : 100% rt 2012. voir les ...

Vu sur i.pinimg.com

Vu sur evtod.com

Vu sur files.forumconstruire.com

Vu sur construiresamaison.com




